Italiano
DA SEMPRE CI IMPEGNIAMO A RISPONDERE AI TUOI DUBBI
E A SODDISFARE LE TUE RICHIESTE.
CHIAMACI AL 0322 834780

Villa indipendente con ampio giardino

590.000 €
449 m2
4 Camere
3 Bagni
Codice
V001585
Città
Castelletto sopra Ticino
Categoria
Villa
Locali
5
Box
2
Mq (commerciali)
449 m2
Mq (calpestabili)
433 m2
Mq Box
68
Posti auto
4
Mq Giardino
1500
Classe energetica
E
183,11 kWh/m²a
Stato Immobile
Buono
Grado
Signorile
Posizione
Centro
Panorama
Vista Aperta
Orientamento
Nord Ovest Sud Est
Lati Liberi
4
Giardino
Privato
Arredi
Non Arredato
Tipo Soggiorno
Doppio
Tipo Cucina
Abitabile
Riscaldamento
Autonomo
Tipo Riscaldam.
Caldaia a Condensazione
Tipo Impianto
Radiatori
Fonte Energetica
Metano
Acqua Calda
Autonoma
Raffrescamento
Split
Infissi
Legno Doppio Vetro
Serramenti
Buono
Persiana
Tapparella Legno
Pavim. Giorno
Cotto
Pavim. Notte
Parquet
Pavim. Cucina
Ceramica
Pavim. Bagno
Ceramica
Accesso interno disabili
Parziale
Accessori
Antifurto, Aria Condizionata, Camino, Cancello Elettrico, Doppi Vetri, Lavanderia, Ripostiglio, Veranda
A Castelletto Ticino, in posizione centrale e comoda a tutti i principali servizi, proponiamo in vendita spaziosa villa indipendente circondata da un grande giardino.

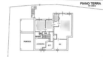
La villa è così composta:
- Piano terra: luminoso soggiorno doppio, una grande cucina abitabile servita da ampio terrazzo, una camera matrimoniale con cabina armadio, camera singola, uno studio e due bagni.
- Primo piano: mansarda e due ulteriori camere.
- Piano Seminterrato: taverna con camino a legna, cucina, sala da pranzo, due camere, bagno, lavanderia e cantina.

Completano la proprietà due box doppi ed un ampio giardino privato, che regala la tranquillità del verde pur restando nel cuore del paese.

Chiamaci per fissare un appuntamento e seguici sulle nostre pagine social di Facebook ed Instagram!

Mappa

via varallo Pombia 2, Castelletto sopra Ticino (NO)

Richiedi informazioni

Invia

Condividi

Cookie preference